


Age Range
12 plus
Inclusive
No
Product Height
230''
Critical Fall Height
222''
Safety Surface Area
15 sqft
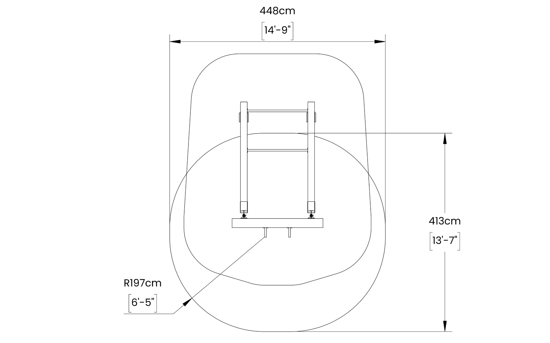
Fall Space Width
448''
Fall Space Length
579''
Support Posts
Sawn Hardwood
Timber Frame
Sawn Hardwood
Steel Components
304 Stainless Steel
Steel Footings
Hot Dip Galvanised Mild Steel
Nets
No
Anti-Climb Mesh
No
Moving Parts
No
FSC Hardwood
30 yrs
FSC Robinia
20 yrs
Stainless Steel
30 yrs
Galvanised Steel
30 yrs
Nets
2 yrs
Moving Parts
2 yrs
We recommend steel footings to improve longevity and make maintenance easier. Our timber warranty period reduces by 5 years for timber in ground contact. If equipment is being installed within 3km of the sea then 316 grade stainless steel should be used. Please inform our sales team if this is required.
Age Range
12 plus
Inclusive
No
Product Height
-
Critical Fall Height
-
Safety Surface Area
-
Fall Space Width
-
Fall Space Length
-
Support Posts
Sawn Hardwood
Timber Frame
Sawn Hardwood
Steel Components
304 Stainless Steel
Steel Footings
Hot Dip Galvanised Mild Steel
Nets
No
Anti-Climb Mesh
-
Moving Parts
No
FSC Hardwood out of Ground
30 yrs
FSC Hardwood in Ground
25 yrs
FSC Robinia out of Ground
20 yrs
FSC Hardwood in Ground
15 yrs
Stainless Steel
30 yrs
Galvanised Steel
30 yrs
Nets
2 yrs
Moving Parts
2 yrs
We recommend steel footings to improve longevity and make maintenance easier. If equipment is being installed within 3km of the sea then 316 grade stainless steel should be used. Please inform our sales team if this is required.